Qué es una UCI y cuáles son los aspectos más importantes para humanizar sus espacios
Una UCI es una Unidad de Cuidados Intensivos. Es un servicio al que acuden los enfermos cuya gravedad implica un riesgo para su vida y en la que se requieren tratamientos y dotaciones especiales como respiradores, gases medicinales, monitorización de las constantes vitales, etc. Suelen estar cercanas a los Bloques Quirúrgicos y tienen muchas similitudes con la Reanimación Postquirúrgica (el lugar donde se recuperan los pacientes intervenidos en quirófano). Dentro de un hospital es uno de los servicios más intensivos y uno de los más delicados tanto en cuanto, la vida de los pacientes que son atendidos en ella, pende en muchas ocasiones de un hilo.
En los últimos años las UCIs, en paralelo con el resto de las unidades del hospital, han ido adaptándose desde el punto de vista exclusivamente tecnológico-médico a otro más enfocado a la humanización de estos espacios para los tres colectivos que interactúan en ellos (pacientes, familiares y personal sanitario). En este punto hay que advertir que la UCI es un servicio eminentemente interno, en el que sólo se admiten visitas de forma puntual, aunque en algunos hospitales y según la gravedad del caso, cada vez se recomienda más el acompañamiento de familiares que colaboran en la recuperación y en el bienestar emocional de los pacientes ingresados. Está comprobado que las UCI de puertas abiertas con una infraestructura más humanizada generan beneficios directos sobre el paciente, sus seres queridos y el personal.

UCI Hospital de Córdoba – Foto Jorge Allende
Debido al riesgo que presentan los pacientes, el personal sanitario, tiene que sentirse cómodo trabajando, sin interrupciones y sin distracciones. El personal que trabaja en estas áreas está sometido a una gran ansiedad y estrés. Por otro lado, el paciente, se encuentra en unas circunstancias muy graves, con poca o ninguna movilidad y normalmente sedado.
En este artículo vamos a ver qué medidas se pueden introducir en estos espacios para garantizar un entorno agradable y humano tanto a los pacientes, a sus familiares y al personal sanitario. Según la teoría de la salutogénesis, vigente desde los años 70, en la que se considera que el entorno ayuda a la recuperación, los primeros aspectos que hay que tener en cuenta son todos aquellos relacionados con el “Sentido de Coherencia”, es decir, la capacidad de asimilación de su situación a pacientes cuyos tiempos de consciencia, son muy limitados.
Circulaciones y accesos
Aunque en este área no se diferencian las circulaciones internas y externas (personal sanitario y visitas), para evitar infecciones y tener un control sobre los accesos, se disponen normalmente tres entradas.
La primera es la del personal sanitario, que ha de pasar por un vestuario previo en el que se cambia de ropa y se lava apropiadamente las manos, se cubre el pelo, se cambia el calzado y se coloca las protecciones que sean necesarias.
La segunda es para la entrada de pacientes encamados que normalmente suelen tener acceso preferencial desde el Bloque Quirúrgico. Son puertas abatibles, de gran tamaño y normalmente automáticas.
Por último, está la puerta para el familiar. Esta se sitúa cercana a la sala de espera y tienen un control más riguroso. Los pacientes suelen pasar a razón de uno por paciente y a través de un vestuario especialmente dispuesto para ellos, donde pueden dejar sus pertenencias, cambiarse, lavarse las manos y colocarse las medidas de protección necesarias.
El interior de un box
Dentro de la unidad de cuidados intensivos, se encuentra el box donde está el paciente encamado. Aunque lo normal es que no existan espacios individualizados, cada vez son más los hospitales que reclaman estos requisitos para tener un tratamiento más cuidado y personalizado. Los boxes individuales ayudan a preservar la intimidad y el confort del paciente y sus familiares.
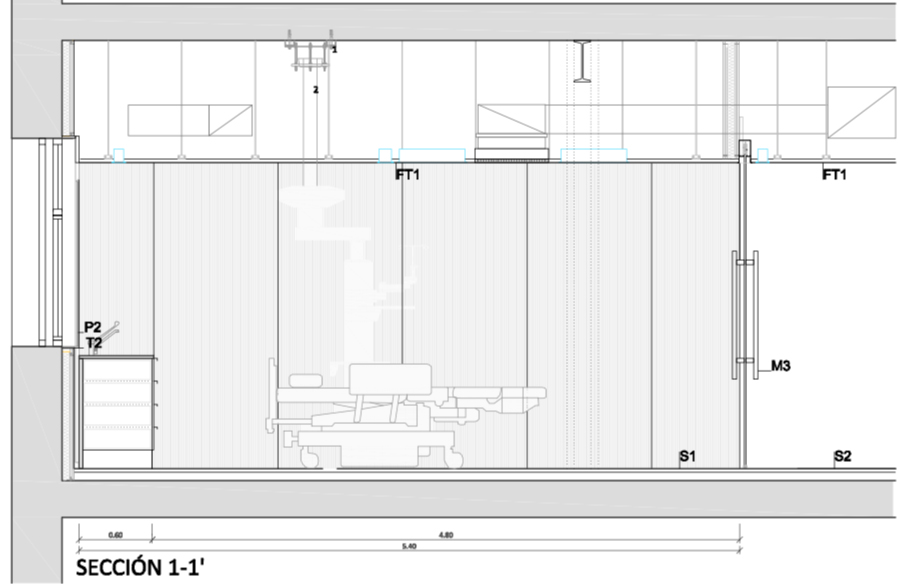
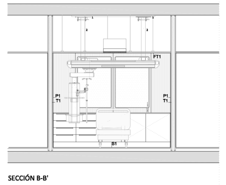
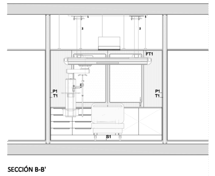
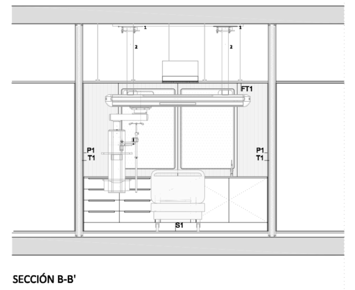
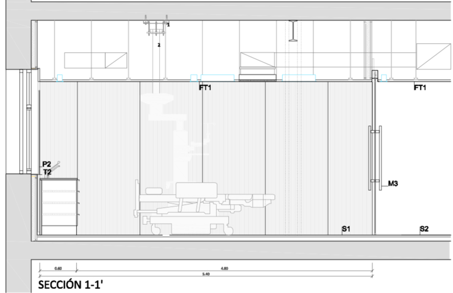
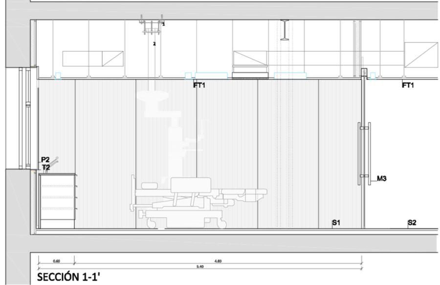
Un box es una habitación con ciertas diferencias. Por ejemplo, las paredes deben ser de vidrio para garantizar la observación desde el control de enfermería. Tienen que tener, además una puerta de acceso ágil y lo suficientemente amplia para poder evacuar rápidamente al enfermo.
En su interior hay un cabecero médico en el que se encuentra todo lo necesario para atender al paciente. Estos cabeceros pueden ser suspendidos, lo que libera mucho el espacio del personal sanitario alrededor del paciente. Suelen tener como mínimo 12 tomas eléctricas para poder enchufar cualquier artefacto, 3 tomas de oxígeno, 2 de vacío (para hacer aspiraciones) y dos de aire medicinal (para los procesos de sedación).
Para poder almacenar todos los productos fungibles que se puedan necesitar, es conveniente dotar de sendos armarios con cajones accesibles y cómodos.
- Proyecto Enero Arquitectura
- Proyecto Enero Arquitectura
Ruido
Uno de los aspectos a cuidar es el ruido. Tanto los monitores, respiradores, climatización u otros equipos esenciales para el tratamiento, son equipos que producen ruidos que se pueden mitigar o eliminar por completo. Por ejemplo, cada vez son más los monitores (aparatos que miden las constantes vitales) que han sustituido el nocivo “bip” por una imagen grande de los latidos del corazón y sólo avisan de las variaciones de frecuencia con un sonido localizado normalmente en el control de enfermería. Este sencillo recurso reduce el estrés y mejora el descanso del paciente.
El resto de instalaciones se diseñan bajo unos parámetros que no excedan una presión sonora de más de 35dB, es decir, prácticamente el sonido del viento.
Calidad del Aire
El tratamiento del aire en estas zonas es más específico que en otras dentro de un hospital. A parte de cumplir con los controles generales de recuperación de energía que evitan el derroche de la misma, los niveles de filtración que requiere el aire en el interior de los boxes es de Clase I, es decir, necesitan hasta 3 niveles de filtrado consecutivos, siendo el último un filtro HEPA (High Efficiency Particulate Air). El caudal de renovaciones tiene que ser de 30 m3/h.m2, es decir, se renueva todo el aire de la estancia unas 10 veces a la hora.
Temperatura
La temperatura puede variar entre 22º y 24º, manteniendo una humedad relativa entre 44 y 55%. Para ello es necesario una regulación estricta de la climatización que se adapte en función de la temperatura exterior y además lo haga de una manera eficiente desde el punto de vista energético. Para ello se disponen unas máquinas llamadas climatizadoras en la cubierta del edificio del tamaño de una furgoneta que tienen más o menos este aspecto.
Estas enormes máquinas de poco peso, pero mucho volumen tienen en su interior un sistema de humectación del aire con el que consiguen mantener la humedad constante.

Proyecto Enero Arquitectura
Iluminación artificial
La iluminación dentro de una UCI varía en función del lugar en el que se encuentre. Por ejemplo, en el interior de un box, donde se necesitan al menos dos ambientes diferentes, uno para la exploración del médico y otro para la luz tenue de ambiente, se oscila entre los 6000 y los 200 lúmenes.
Es muy importante, en la medida de lo posible, la iluminación natural y las ventanas para que el paciente se beneficie del estímulo del ritmo circadiano. En el caso de no contar con iluminación natural, se pueden utilizar lámparas led con un control espectral de la luz para que el paciente pueda orientarse en los ciclos vigilia /sueño en sintonía con el ciclo vital.
La iluminación artificial regulable y dinámica en cada box según las necesidades del paciente y el personal sanitario son fundamentales. Las diferentes opciones de iluminación directa para la exploración, evitando el deslumbramiento del paciente e indirecta para el descanso, se complementan con la posibilidad de regulación de la temperatura y el color de la luz que aportan bienestar emocional y psicológico.
Para el resto de espacios dependerá de las zonas, pero están en el entorno de los 1700 lúmenes para zonas de trabajo y los 600 lúmenes de los vestuarios. Para que os podáis hacer una idea, una bombilla incandescente de 100w emite unos 1000 lúmenes.
Privacidad
Los periodos de vigilia o visitas de estos pacientes son muy limitados, lo que no evita que cuando se produzcan, estos son de gran importancia para la pronta recuperación o incluso para paliar el dolor del trágico desenlace. Para ello es muy importante que las UCIs cuenten con boxes individuales y con posibilidad de aislamiento visual en momentos puntuales. Este último aspecto puede ser controvertido puesto que aunque el control visual es de vital importancia, el paciente tiene que poder ser capaz de aislarse visualmente en momentos determinados en los que su vida no esté en peligro o en caso de que sus familiares estén esperando lo peor, tengan unos minutos para despedirse de su ser querido en la intimidad.

UCI Hospital de Córdoba – Foto Jorge Allende
Familiares
Si bien este grupo de personas está al margen del servicio, son un colectivo muy importante para impulsar las ganas de superación de los pacientes. No ajenos al proceso que se vive en el interior de las UCIs, el familiar del paciente es probablemente el colectivo que soporte más estrés en esta situación. Además no se les suele tener en cuenta a la hora de diseñar estos espacios y suelen quedar relegados a salas de esperas infra dimensionadas y sin posibilidades de luz, vistas, etc.
La solución en estos casos es sencilla, conviene dotar los espacios de espera con amplitud suficiente para que la espera se haga con cierta intimidad entre unos y otros. Además hay que tener en cuenta que en mucha ocasiones son varios los familiares de un solo paciente los que acuden a la visita y es importante que los espacios permitan separar estos grupos con un distancia mínima de confort. Diseñar espacios para que los familiares no estén ubicados en sillas frente a la puerta de acceso de la UCI , reduce el estrés de la espera y la presión sobre el personal sanitario también.
Para mejorar la calidad de la cantidad de horas que pasan los familiares se ofrece una variedad de equipamiento que ayude a preservar la intimidad familiar y a su vez tener la posibilidad de hacer una espera activa, es decir, poder tener ciertas distracciones que ayuden a reducir la ansiedad.
Tanto la luz natural como las vistas al exterior en estos espacios, ayudan a mantener el ciclo circadiano que es aquel que regula nuestro sistema en función del avance del día y del cambio del entorno. Se ha probado en numerosos estudios, que es fundamental mantener las funciones primarias del sistema nerviosos reguladas para poder afrontar mejor el estrés. Por otro lado, las vistas al exterior, ayudan a distraer la atención y aliviar la incertidumbre.
Por último, los espacios cálidos para trasladar información a los familiares de forma privada ayudan a mejorar la comunicación.
Luz y vistas
Así como en las salas de espera de los familiares, los boxes han de contar con las mismas condiciones de luz natural y vistas. Especialmente en pacientes añosos esto puede ayudar a la pronta recuperación e incluso evitar casos de demencia transitoria por falta o interrupción de los biorritmos.
Consideramos de extrema importancia introducir la luz natural especialmente en los servicios intensivos de los hospitales, para aliviar el esfuerzo continuado en situaciones de estrés sin un punto de vista en el que podamos descansar la vista, identificar en qué parte del edificio estamos y en qué fase del día o de la noche nos encontramos.
Si quieres ver unas imágenes de nuestro último diseño en UCIs, a continuación, te presentamos la recientemente inaugurada de la FJD, todo un hito en tecnología, capacidad y por supuesto, ejemplo de todos los aspectos anteriormente tratados.
- UCI Hospital de Córdoba – Foto Jorge Allende
- UCI Fundación Jiménez Díaz – Enero Arquitectura
- UCI Fundación Jiménez Díaz – Enero Arquitectura




